SAVED YACHTS English Language Expand Languages Menu
close

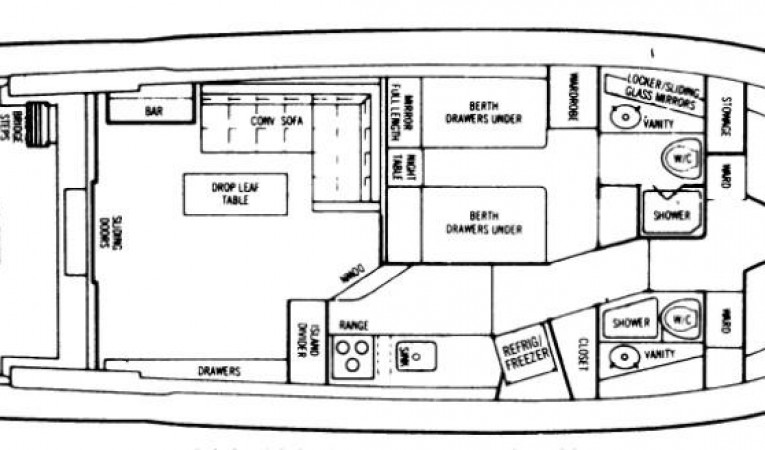
46' Bertram 1973 CUSTOM REBUILD - BEST BUY!!

Trinidad and Tobago

Previously Asking $169,900

Off Market

Description

TOTAL REBUILD!! INCREDIBLE OPPORTUNITY TO BUY A CLASSIC 46 BERTRAM!! Don't miss this Excellent Opportunity to own a classic 46' Bertram Convertible Sportfish that has been completely refit in 2001 from top to bottom with new engines, custom painted hull and much more. She shows like a new yacht.  If you are in the market for one of the most solid, seaworthy Sportfish hulls that are proven to raise fish anywhere - Don't Miss This Amazing Opportunity!

KEY FEATURES TO CONSIDER: 

NEW INSTALLED 680HP CUMMINS QSM11 WITH ONLY 550 APPX HOURS!!

NEW 15KW KILOPAK AND 17KW KUBOTA GENERATORS!!

UNDERWATER LIGHTS!!

COMPLETE INTERIOR AND EXTERIOR REBUILD!!

35 GPH WATERMAKER!!

AWLGRIP GREY HULL AND TOP SIDE PAINTED!!

LARGE SWIM PLATFORM!!

UPGRADED ELECTRONICS AND MUCH MORE!!

MAINTAINED WITH NO EXPENSE SPARED!!

SHIPPING TO THE USA IS QUOTED AT ONLY $15K!!

BEST CLASSIC 46 BERTRAM ON THE MARKET!!

Yacht Overview


  • Yacht Details 46' Bertram 1973
  • Location Trinidad and Tobago
  • Engines
  • Beam 16'
  • Draft 4' 6''
  • Staterooms 2

Specifications

  • Cruising Speed: 22 kn
  • Maximum Speed: 26 kn
  • Beam: 16'
  • Hull Material: Fiberglass
  • Max Draft: 4' 6''
  • Displacement: 44,900 lb
  • Fuel Tank: 1 x 620|gallon
  • Fresh Water: 1 x 230|gallon
  • Double Berths: 1
  • Cabins: 2
  • Heads: 2

Specifications


The Bertram 46 Convertible was for many years the standard by which other production sportfishing boats her size were measured. Her popularity had much to do with the precise handling and impressive seakeeping characteristics of her deep-V hull, a proven rough-water performer with a wide beam and low cockpit freeboard.  A popular model for many years after production ended in 1987, the Bertram 46 Convertible is widely considered a classic sportfishing design.

  • Complete Interior and Exterior Rebuild in 2001 
  • 2 QSM 11 Cummins 680hp (550 total hours run) oil changed every 100 hrs
  • New 2016 Kubota 17KVA generator (1420 hrs total hours) oil changed every 100 hrs
  • New 2001 Kilo-Pak 15KVA generator (2400hrs total hours) oil changed every 100 hrs.
  • Underwater Lights
  • Raymarine - Radar, Autopilot, GPS
  • 35 GPH Watermaker
  • 2 Freezers
  • Refrigerator
  • Icemaker
  • Dinghy with 15hp 4 stroke Yamaha Outboard
  • Entertainment Stereo inside and outside

Remarks


An outstanding example of what a 46 Bertram Convertible should be. Don’t miss this amazing opportunity to own this Incredibly Unique Bertram! She has been Rebuilt and Maintained by an Experienced Yachtsman and is in TURN KEY Condition. If you are in the market for a classic 46 Bertram that is a proven platform to raise fish and cruise - THIS IS IT! She is easy to see 7 days a week. Schedule your appointment today.

SHIPPING TO THE USA IS QUOTED AT ONLY $15K

Exclusions


Owners personal effects. A list will be provided upon request.

Disclaimer

Denison Yacht Sales offers the details of this yacht in good faith but cannot guarantee or warrant the accuracy of this information nor warrant the condition of this boat for sale. A yacht buyer should instruct his yacht broker, or his boat surveyors, to investigate such details as the buyer desires validated. This yacht for sale is offered subject to prior sale, price change, or withdrawal without notice.