SAVED YACHTS English Language Expand Languages Menu
close

59' Kanter 2003 GREAT BLUE

St. Thomas, ON, Canada

Previously Asking $450,000

Off Market

Description

A whopping $140,000 price reduction!! Why?! Because the owners are cruising this great yacht in their local Canadian waters, but now need to start thinking about the upcoming winterization in another 2 months. They want her sold rather than winterized.

This is an opportunity to own a lightly cruised pedigreed 59' Kanter Sedan Flybridge Motor Yacht. GREAT BLUE, designed by Dieter Empacher (Ted Hood's lead designer for years), built by world-class Kanter Yachts, is a timeless lovely down-east style yacht. Only 65 hours on the engines (the Volvo IPS new 2016)! Recent sea trials have proven the boat to be fast, stable and comfortable. She will be at home plying the waters of the Bahamas or cruising New England to Nova Scotia. The ideal boat for maximum comfort which can be easily operated and run by a couple or enjoyed as a family cruiser.

Yacht Overview


  • Yacht Details 59' Kanter 2003
  • Location St. Thomas, ON, Canada
  • Engines
  • Beam 16' 6''
  • Draft 4' 6''
  • Staterooms

Specifications

  • Cruising Speed: 18 kn
  • Maximum Speed: 22 kn
  • Beam: 16' 6''
  • Hull Material: Aluminum
  • Max Draft: 4' 6''
  • Displacement: 60,000 lb
  • Fuel Tank: 1 x 750|gallon
  • Fresh Water: 1 x 345|gallon
  • Holding: 1 x 80|gallon
  • Heads: 2

Introduction


This yacht offers luxury and speed wrapped in the safety and security of aluminum. The finest custom yachts are a result of a collaboration of a knowledgeable owner, a professional designer with a history of creating proven designs, and a builder with generations of experience. Designed by Dieter Empacher, long time head designer for Ted Hood, and built by Kanter Yachts, known for their boats that circumnavigate the world, she is special in many ways. Strength, performance, quality of workmanship, and special features for cruising long distances with only one couple are the mandates. Guests can be comfortably accommodated in a separate area from the owners'. Her deck layout is straight-forward with easy walkability and inordinate deck space to store dinghies and other gear such as bikes and kayaks. Good visibility from both the pilothouse and fly bridge along with a bow thruster make for stress-less piloting. Her high and substantial lifelines make for safe deck work in any sea. All of this and looks to turn heads in the most prestigious harbors the world over. 

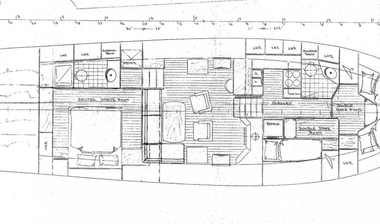
Main Salon


The main salon features both a port and starboard door for easy access to the side decks. Steering station is located to starboard. Unobstructed visibility is assured with large windows. Hand selected cherry with a satin finish is found throughout the interior. Overhead is finished in ultra leather, new 2016, with varnished battens. Pilothouse features an extendable burled maple pedestal table which seats six. A wrap-round settee, flanked by two cabinets is aft of the table. Two leather club chairs face the ultra leather, new 2016, settee.

Pilothouse/electronics


Port and starboard Diamond Seaglaze doors. Full navigation station new in 2016. Volvo glass cockpit new 2016. Engine instrumentation new 2016. Joystick and wheel driving new 2016.

  • (2) 15" Multifunction display touch screens (2016)
  • Garmin GMR 604 x HD radar (2016)
  • AIS Garmin transceiver 600 (2016)
  • Garmin 300 VHF (2016)
  • Dynamic Positioning System (2016)
  • Navico 110 WX Ultrasonic wind sensor (2016)
  • Garmin chartplotter (2016)
  • Garmin depthsounder (2016)
  • KVH Trac Phone FB150 (2012)
  • KVH Trac Vision M5 (2012)
  • Kahlenberg air horn triple chrome (2012)
  • Wema tank level gauges

Galley


Located to port, forward of the main salon, the u-shaped galley features a clean, well-lit, modern look. Countertops are light corian, appliances are electric. Cherry cabinetry with good stowage.

  • Full size Fisher-Paykel 13.5 cu. ft. refrigerator/freezer (2016)
  • Princess electric 3 burner stove w/oven
  • Sharp built-in microwave
  • Double stainless steel sink
  • Generous stowage

Master Stateroom


Located aft, the master stateroom is bright and airy. The queen sized bed, new 2016, is flanked by lovely cabinetry with generous room on either side of the bed. Across from the bed, is the ensuite head with separate walk-in shower. There are no openings from the stateroom to the engine room, allowing for maximum noise reduction.

  • Hatches for ventilation
  • Teak & holly high varnished floors
  • Paneling and cabinetry is cherry hand rubbed varnish satin finish
  • Splendide washer/dryer (2016)

 

Guest Cabins


The guest cabins are located forward and starboard with a separate head.

  • Large hatches and portlights
  • Cherry cabinetry
  • Cedar lined hanging lockers
  • To port is the head and shower with electric head
  • Vanity top is white Corian

 

Engines


The engine room is aft of the accommodations with the generators located in a utility room beneath the salon.

New Volvo Penta D11 IPS 650 engines with twin IPS pods were installed in 2016. Each engine is 510hp commercial rated. This marine commercial application not only meets the Tier 3 requirements, but its high torque at low rpms allows for getting on plane faster and provides for a quieter and safer ride along with better fuel consumption. Maximum insulation was used to reduce running noise and vibration.

Fuel consumption at 10 knots is 1 gallon per mile. Cruising at 18 knots sips 2 gallons per mile.

  • Cruising Speed: 18k
  • Max Speed: 22
  • Engine controls by Volvo (2016)
  • Engine temperature sensor alarm (2016)
  • Racor 500 and 1000 fuel filters
  • (2) Reverso oil change systems

Mechanical


  • Lewmar bow thruster 15hp
  • (3) CruiseAir AC reverse cycle 120/240V
  • Groco seawater system
  • Raritan 20gl hot water tank
  • (5) Rule Bilge Pump
  • Halon fire extinguishing system
  • (2) Holding tanks
  • Head Hunter fresh water pump
  • Central vacuum, Dirt Devil CV1500 (2016)

 

Electrical System


  • Westerbeke generator 15kW w/ sound shield
  • Westerbeke generator 5kW w/ sound shield
  • (2) Alternators 80amp 24v
  • Battery Bank 8 - 8D gel batteries
  • Trace 4000 Battery charge
  • Trace 4000 inverter
  • 12v/24v Electrical System
  • Bass Control Panel
  • Galvanic isolator
  • 60amp equalizer

Fly Bridge


The flybridge features two settees upholstered with white ultra leather for lounging. A white Sunbrella bimini is collapsible. The flybridge is accessed via a staircase located forward of the upper aft deck. Dinghy storage is located on the upper aft deck with the mast and boom to serve as dinghy & motor lift.

  • Volvo engine controls (2016)
  • Volvo wheel and joystick steering (2016)
  • Volvo glass cockpit (2016)
  • (2) 15" Volvo/Garmin display touch screens (2016)
  • 12" Garmin screen
  • Garmin 300 VHF remote (2016)
  • Compass
  • Upholstered settee and seats (2016)
  • Lewmar bow thruster 15hp electric control

 

Deck


The mast/boom is on a tabernacle and can be lowered. The air draught is approximately 27 feet; with the mast lowered and stowed, air draught is an amazing 13' 6".

  • Windlass Maxwell 2200 with Capstan
  • Delta Anchor
  • Swim Platform with teak deck
  • Deck wash down fore and aft
  • Cabin deck stepped mast with loading boom for easy dinghy deployment
  • Varnished teak caprail w/ SS bulwark railing & 2 gates
  • Transom door
  • Bench seating w/storage locker aft
  • Hatch forward for fender storage
  • Teak decks

Hull


A V-bottom design with a deadrise of 19 degrees guarantees a comfortable ride at speeds up to 22 knots. Four oversized longitudinal girders, which support the engine, run the full length of the underbody of the hull to absorb engine vibration and noise. Greg Marshall designed the refit for the installation of the pods. The result is a hull bottom ten times the normal structure.

Additional Comments


After being commissioned by the owner of a 120' yacht, the construction of this Down East style yacht was postponed due to unforeseen family events. Kanter Marine completed the yacht finishing her out to their world-class standards. Great Blue has been lightly cruised by the Kanter family and of course upgraded and maintained to the highest standards including replacement of the original diesel engines with new twin Volvo Penta IPS.

Disclaimer

Denison Yacht Sales offers the details of this yacht in good faith but cannot guarantee or warrant the accuracy of this information nor warrant the condition of this boat for sale. A yacht buyer should instruct his yacht broker, or his boat surveyors, to investigate such details as the buyer desires validated. This yacht for sale is offered subject to prior sale, price change, or withdrawal without notice.